Двухкомнатная квартира 47,50 м2 по ул. Скворцова-Степанова 20 за 4580000 руб.

Двухкомнатная квартира по ул. Скворцова-Степанова, 20 в Твери
Цена 4 580 000 р. (96 421 р./м2)
Подать заявку на ипотеку
Район Заволжский
Адрес Скворцова-Степанова, 20
Этаж 3/9
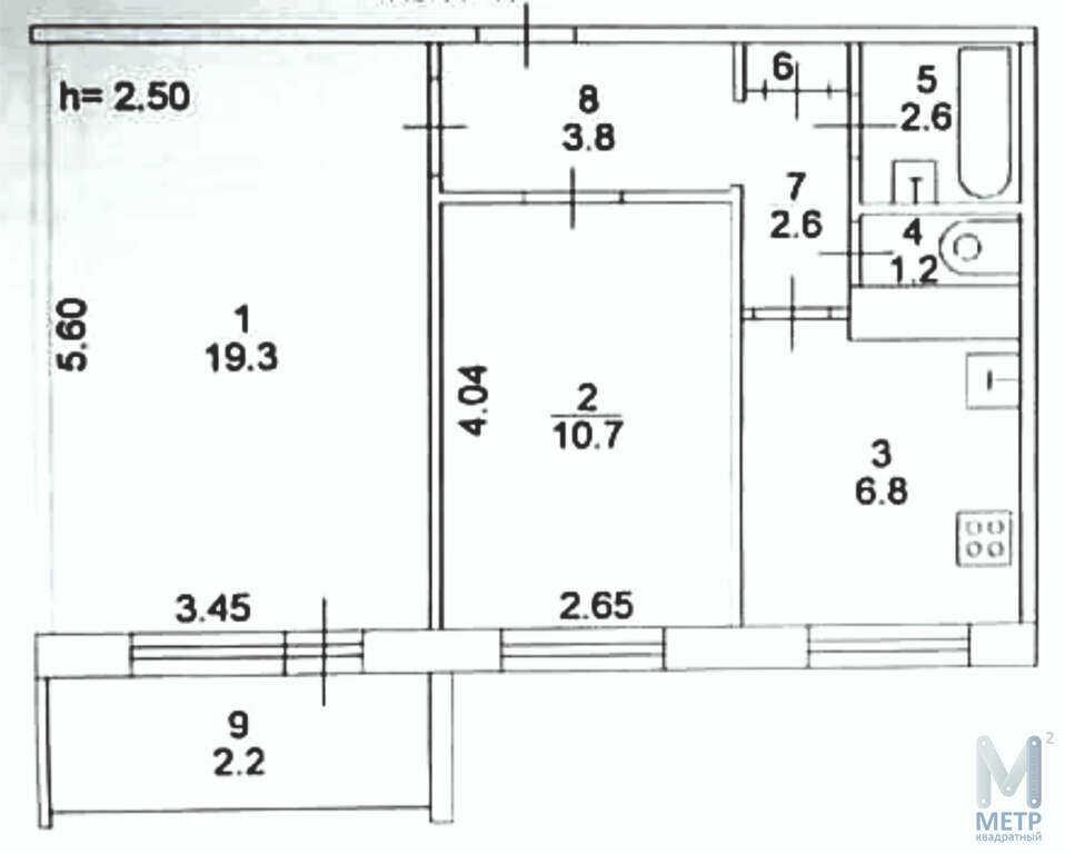
Площадь общая 47,5 м2, жилая 30 м2, кухни 7 м2
Кол-во комнат Двухкомнатная
Продаётся уютная 2-х комнатная квартира в любимом ближнем Заволжье! Идеальный вариант для тех, кто ценит комфорт, тишину и уют! Не просто квартира, а ваш будущий дом, где уже всё готово для счастливой жизни. Расположение: Ул. С.Степанова, д. 20, ближнее Заволжье, Тверь. Окна выходят в тихий, спокойный двор. Чистый подъезд и ухоженная территория радуют глаз каждый день. Всё под рукой: детские и спортивные площадки, парковка, сады, школы, магазины и остановка транспорта - в шаговой доступности. Отличная прогулочная зона: всего 500 метров до набережной Волги! Вечерние прогулки по променаду и вид со смотровой площадки станут приятной привычкой. До центра: всего 15 минут на автобусе или 30 минут неспешной пешей прогулки. О квартире: Общая площадь: 47,5 м2 + лоджия 2,2 м2. Планировка: Улучшенная, неугловая, комнаты изолированные (19,3 м2 + 10,7 м2). Этаж: 3-й этаж в 9-этажном панельном доме (очень удобно!). Ремонт: Свежий косметический ремонт! Натяжные потолки, новенький линолеум, современные окна ПВХ. Кухня: Просторная, 7 м2, с газовой плитой и встроенной мебелью. Лоджия: Остеклена раздвижной алюминиевой рамой - много света и воздуха! Санузел: Раздельный, с кафелем и новыми трубами - полный порядок. Чистая продажа: Один собственник, все документы готовы. Описание и фотографии полностью соответствуют действительности. Ваш надёжный помощник по недвижимости: Готов помочь вам решить любой жилищный вопрос! Помогу найти покупателя для вашей недвижимости. Организую срочный выкуп. Подготовлю и проведу сделку в ОДИН день. ЗВОНИТЕ! Отвечу на все ваши вопросы. МОИ КОНСУЛЬТАЦИИ БЕСПЛАТНЫ! kvmeter.ru ID:47551949
Описание дома
Этажность дома 9
Объявление № 23533828
Дата подачи:
2 ноября 2025 г. 6:15
Дата обновления:
28 ноября 2025 г. 21:01
Просмотров 12 Хотите продать быстрее?

Продавец
Кирилл Иванович Романенко
Показать номер телефона
Пожаловаться
Комментарии:
Добавить