Нежилые свободного назначения площадью 130,45 м2, по цене 20872000 по адресу Коминтерна - 91

Цена 20 872 000 р.
Вид недвижимости Нежилые свободного назначения
Район Московский
Адрес Коминтерна, 91
Площадь помещения 130,45 м2
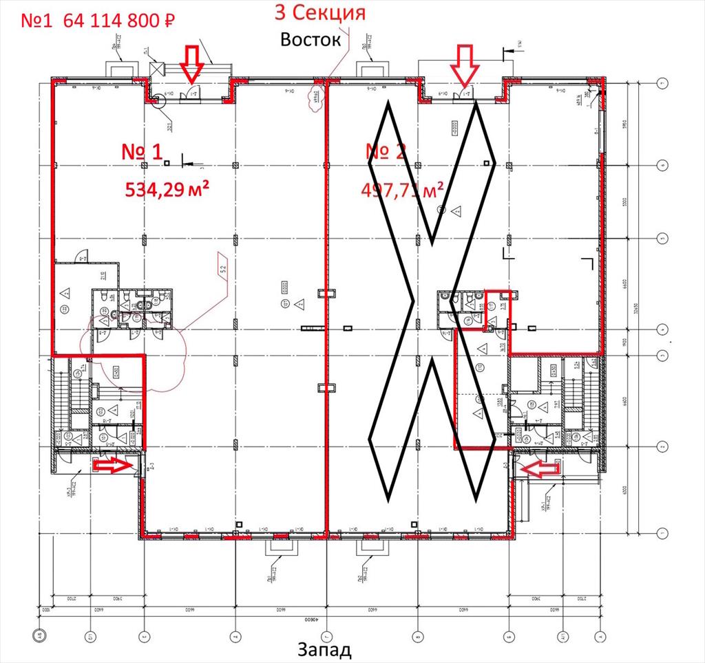
Помещения свободного назначения в новом жилом комплексе на ул. Коминтерна/б-р Цанова в Твери. Площадь - от 81 м2 до 534 м2. 1 линия и 2 линия - вход с улицы и со двора. Отдельная входная группа. Гостевая парковка для клиентов. Потолки - 3,5 м. Повышенный пешеходный и автомобильный трафик Сдача 2й очереди в эксплуатацию - 4 кв. 2026 г. Всего будет 5 очередей строительства. 15 жилых домов. Строительство жилого комплекса будет до ТРЦ Вавилон. Рассрочка. Ипотека. Покупка помещения проходит с использованием Эскроу-счета. Просмотры помещений возможны по предварительной записи. ❗P.S. Уважаемые покупатели! Если предложенные варианты вам не подходят, мы подберём другие — по вашим критериям — в следующих очередях или в других районах и комплексах. В наличие помещения в сданных и строящихся домах. По всем вопросам звоните!
Объявление № 24003079
Дата подачи:
7 апреля 2026 г. 4:56
Дата обновления:
7 апреля 2026 г. 4:00
Просмотров 14 Хотите продать быстрее?

Продавец
Агентство недвижимости:
Сартаков Дмитрий
email: flatis-info@mail.ru
Показать номер телефона
Пожаловаться
Комментарии:
Добавить